WORK
ABOUT
NEWS
studio re.d
WORK
ABOUT
NEWS
studio re.d
KERSTIN_PFLEGER
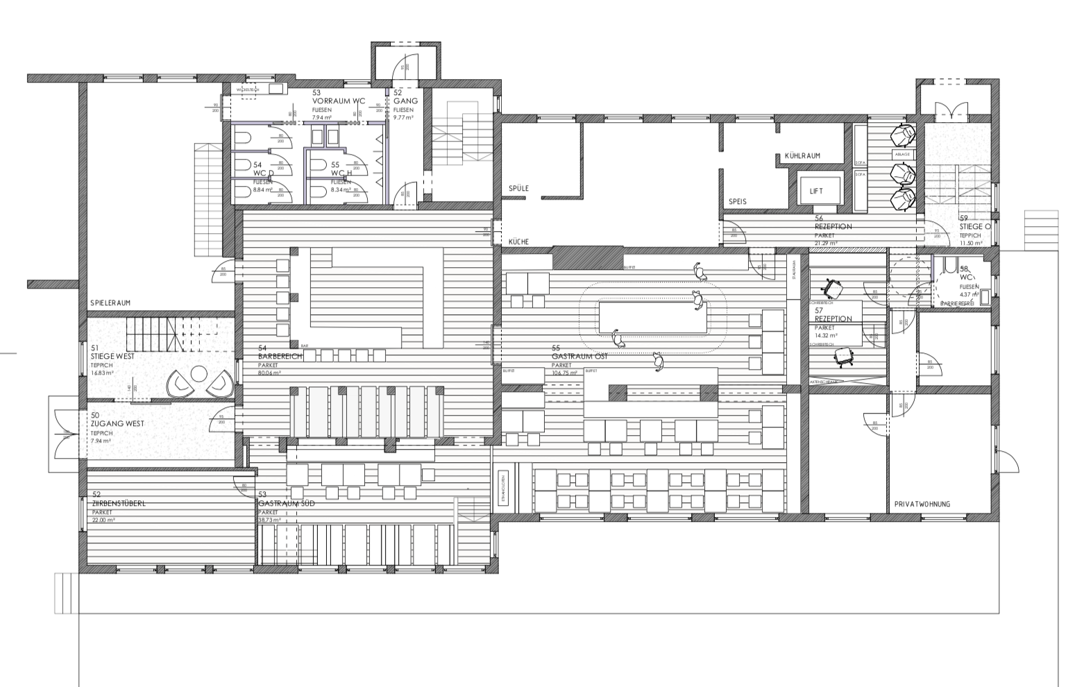
Renovation of the dining area and the hotel rooms of a mountain hotel in the Austrian Alps with Architekt Schlömicher ZT GmbH.
The main part of the concept was to include the counter-level-map of the area.
↑
Back to Top